Polonya kökenli bir Yahudi olan Daniel Libeskind tarafından 1993 yılında açılan bir yarışma üzerine tasarlanmış olan Berlin Yahudi Müzesi’nin inşası 1999 yılında tamamlanmıştır. Yahudi soykırımını ve Yahudilerin soykırım öncesi ve sonrasında yaşadıklarına tercüman olmuştur. Sıra dışı şekli ile en ünlü müzeler arasında yer almaktadır.
- Daniel Libeskind tarafından tasarlanan Berlin Yahudi Müzesi, Yahudi soykırımını ve öncesinde/sonrasında yaşananları anlatan etkileyici bir yapıdır.
- Müze, 1993’te başlayan bir yarışma sonucunda inşa edilmiş ve 1999’da tamamlanmıştır.
- Libeskind’in tasarımı, müzenin içinde yaşanan duygusal deneyimleri mimari olarak yansıtmayı amaçlamaktadır.
- Müze, üç ana bölümden oluşur: Süreklilik Yolu, Sürgün Yolu ve Soykırım Yolu.
- Her bölüm, Yahudilerin yaşadığı travmaları sembolize eden özgün tasarımlara sahiptir.
- Müze, ziyaretçilere soykırımın acı gerçeğini somut bir şekilde deneyimleme fırsatı sunar.
- Mimari olarak soykırımın karanlık atmosferini yansıtan enstalasyonlar büyük etki yaratır.
- Süreklilik Yolu’ndaki eğimli koridorlar ve Sürgün Yolu’ndaki hapishane benzeri bahçe, Yahudilerin yaşadığı acıyı anlatır.
- Müze, soykırımın ve insanlık dışı zulmün sembolü olan Soykırım Kuleleri ile son bulur.
- Libeskind’in tasarımı, mimariyi kullanarak tarihi ve duygusal deneyimleri bir araya getirir.
- Berlin Yahudi Müzesi, ziyaretçilerine tarihi sadece anlatmakla kalmaz, aynı zamanda yaşatır.
- Mimari olarak müze, kaybolan Yahudi kültürünü ve kimliğini yeniden oluşturma amacını taşır.
- Müzenin yapısı, Yahudi halkının tarihini derinlemesine anlamak için bir fırsat sunar.
- Libeskind’in soyut ve sembolik tasarımı, müzenin benzersiz ve unutulmaz bir deneyim sunmasını sağlar.
- Müze, ziyaretçilere tarihle yüzleşme ve insani acıları anlama fırsatı sunar.
- Her koridor ve enstalasyon, ziyaretçilere soykırımın insanlık üzerindeki yıkıcı etkilerini gösterir.
- Berlin Yahudi Müzesi, mimari ve içerik bakımından dünya çapında tanınmış ve etkileyici bir yapıdır.
- Libeskind’in tasarımı, soykırımın unutulmaması ve tekrarlanmaması gerektiği mesajını güçlü bir şekilde iletmektedir.
- Müze, tarihi belgelerle dolu olmasının yanı sıra duygusal bir deneyim sunar.
- Berlin Yahudi Müzesi, insanlığın karanlık tarihine dair önemli bir hatırlatıcı ve öğrenme merkezi olarak öne çıkar.
Gelin bu devasa boyutlardaki deneyim ve enstalasyon alanını hep beraber inceleyelim..

Berlin Yahudi Müzesi Tarihi
İlk Yahudi müzesi fikri 1971 yılında ortaya çıkmıştır. Bu fikir üzerine Yahudi Cemiyeti Kurulu, Berlin Müzesi yönetimi ve Berlin Senatosu Berlin Müzesi’ne bağlı, Berlin Yahudilerinin tarihlerine ve kültürlerine adanmış bir “Yahudi Müzesi” yapmayı planlamışlardır. 1976 yılında bu proje adına “Berlin Yahudi Müzesi Topluluğu” kurulmuştur.
1979 yılına gelindiğinde ise Dr. Vera Bendt Yahudi Departmanı’nın başkanı olarak, Yahudi Müzesi’ni kurmuştur.



1988 yılında, Frankfurt Yahudi Müzesi’nin açılışında, ortaya atılan bir fikir üzerine Berlin yönetimi tarafından başlatılan bu kompleks müze yarışması, Berlin’de halihazırda bulunan fakat yeterli olmayan Yahudi Müzesi’nin genişletilmesi için başlatılmıştır. Aslen 1933 yılı tarihli müze, 1938’de Nazi yönetiminin baskıları sonucu kapatılmıştır. Nazi yönetimi devrilmesine ve Almanya’nın gelişmesine rağmen müze 1975 yılına kadar kapalı kapılar ardında ve ziyaretçilerinden mahrum kalmıştır. Berlin’deki Yahudi nüfusunu yansıtan bu müzenin Berlin’e tekrar kazandırılabilmesi için açılan bu yarışma sonucu olarak Daniel Liebeskind’in projesi seçilmiştir. Uluslararası ve ulusal birçok katılımcı proje arasından Liebeskind’in projesinin seçilmesinin temelinde, bu olguyu süreç olarak ele alması ve kavramsal olarak soykırımdan önce, sonra ve soykırım sırasında bir Yahudi’nin yaşamını ve hissettiklerini yansıtacak, şekilsel ve simgesel bir yapı tasarlamış olması yatmaktadır.








Liebskind’in tasarımı seçildikten birkaç ay sonra Berlin Duvarı yıkıldı. Sonrasında ise birleşmiş Berlin’in politikalarında bir takım değişiklikler oluşmuştur. Yeni bütçe planlamaları ve birleşmiş Berlin’in yapısına karar verilen bu dönemde tasarımın gerçekleştirilip gerçekleştirilmemesi konusu uzun bir süre tartışılmıştır. Bunun üzerine Yeni Berlin, 1991’de projenin planlandığı gibi devam etmesine karar verdi.
Her türlü zorluğa göğüs germiş olan Yahudi Müzesinin yapımı 1999 yılında tamamlanmış ve 2001 yılında ziyaretçilere açılmıştır.
Berlin Yahudi Müzesi Mimarisi
Libeskind için Yahudi Müzesi kazanılması gereken bir yarışmadan çok, Berlin’de kaybedilmiş olan Yahudiliği ve kültürü tekrar oluşturmak ve bu süreci bu kaybolmaya sürükleyen her aşamayı aktaran bir deneyim alanı yaratmak anlamına gelmektedir.
Bu yolda gerçekten ilham alan Libeskind, müzede yokluk, boşluk ve görünmezlik hislerini vurgulamak istemiştir. Bunu ziyaretçilerine aktarmak için ise mimariyi kullanmıştır.












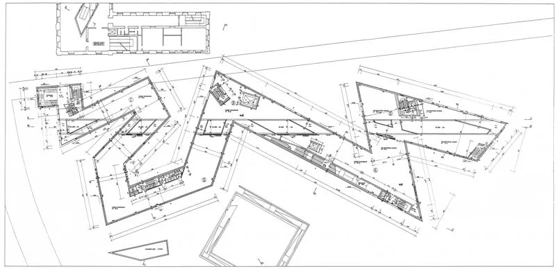
Müzenin girişini dahi bu üslup ile mimari olarak tasarlayan Libeskind girişi eski müze binasının içinden ve yer altından tasarlamıştır. Bu uzun koridorun sonuysa 3 ayrı koridora açılmaktadır. Yollardan ilki tarihin ve yaşanmışlıkların tanığı yapan uzun bir alan olarak tasarlanmıştır. İkincisinde ise baskı ve zor kullanma ile Berlin’den, evinden ayrılmak zorunda kalan Yahudilerin yaşadıklarını ve hislerini aktarmak için tasarlanmışken, üçüncü ve sonuncu yol ise direnişçilerin ve başaramayanların sonunu anlatmaktadır. Soykırıma çıkan bir çıkmaz. Bu alan aynı zamanda, yapının tanınır yüzü haline gelmiş 10.000 ifadesiz yüz plaka ile tasarlanmış bir bölümü de kapsamaktadır.
1.Bölüm:Süreklilik Yolu
Beş katlı çinko yapıdan oluşan yapının ana bölümüdür. Burada, tıpkı öldürülen ve acı çeken Yahudilerin ellerindekileri kaybetmeleri ve engellerle karşılaşmaları , gözle fark edilmeyen ancak algılanan eğimler tasarlanarak somutlanmıştır. ‘Süreklilik Merdivenleri’ olarak adlandırılan merdivenler ziyaretçileri üst katta bulunan sergi mekanlarına yönlendirmektedir. Koridor ve merdivenler boyunca aydınlatma biçimi ve duvardan duvara saplanan beton ayrımlar Yahudilerin tarih boyunca önlerine çıkartılan engelleri temsil etmektedir.
Libeskind, mekanı bölerek, ayırarak, yamukluklar kullanarak, malzeme ve ışık seçimi ile ziyaretçilerine Yahudilerin yaşadıklarını aktarmaya çalışmıştır. Birdenbire kararan ve aniden aydınlanan merdivenlerde düşme tehlikesi yaşatılması ve merdivenlerin basamak yüksekliklerinin eşit boyda olmaması gibi tasarımlar Yahudilerin bir günlerini geçirmek için sarf ettikleri eforu çok güzel bir şekilde olgusallaştırmış ve mimari olarak somutlaştırmıştır.












2.Bölüm:Sürgün Yolu
İkinci koridor ise sürgünde olmayı, yabancılığı ve zor koymalar ile kaybolan özgürlükleri ifade etmektedir. Sürgün Yolu Berlin’den göçe zorlanan ve sınır dışı edilen Yahudilerin anısına yapılmış olan sürgün bahçesine ulaşmaktadır. Bu bahçe bir hapishane işlevi görmektedir çünkü girilen yol dışında bahçenin başka herhangi bir çıkışı bulunamamaktadır. Bahçe ise kare formlu, eğimli bir zemin üzerine yerleştirilmiş, üzerinde yaklaşık 12 metre yüksekliğinde kırk dokuz adet içi boş beton sütunlardan oluşmaktadır. Ve bu sütunlar iç kısımlarında, Yahudilerin sürgün edildikleri yerlerden getirilmiş topraklarla beslenen canlı bitkilere ev sahipliği yapmaktadır. Sürgün bahçesi ana bina kütlesi tarafından dış gözlemlerden izole edilmiştir.






3.Bölüm:Soykırım Yolu
Soykırım yolu ise altı adet soykırım kulesinden oluşmaktadır. Bu kuleler kaçınılmaz olan kaderin ve çaresizliğin sembolü olmuşlardır. Binanın içinde, binanın zikzak formunu kesen, farklı şekillerde ve farklı büyüklüklerdeki soykırım kuleleri, gerçek isimler ve olaylara adanmıştır.
Soykırım Kuleleri piramit formunda tasarlanmıştır. 20 metreye varan yüksekliğe sahip olan bu alanlar gerek aydınlatma ve gerek mekansal özellikler sebebi ile insana bu soykırımı yaşatmak üzere tasarlanmıştır. İnsan ölçeği dışındaki bu uzunluğuna rağmen alabildiğine dar ve sıkışık olan bu alanlar kısıtlı ışıklandırma, keskin duvar yapıları ve ürkütücü soğuk ile birleştirilmiştir. Bu kasvetli mekan, çaresizliğin ve dünyanın sonunun hissiyatını çok başarılı bir şekilde ziyaretçisine aktaran başarılı enstalasyon alanlarından birisidir.








Yapının formu Yahudilerin yaşadıklarının soyutlanmış bir hali olarak düşünülmüş ve müzenin taşıyıcı kısımları, farklı tarihi olayları niteleyen deneyimler olarak planlanmıştır. Çizgilerle birbirine bağlanan bu olaylar zinciri sonucu ortaya çıkan zig-zag yapısı form da aslında kabaca oluşan bu yapının bir sonucu olarak gökyüzüne yükselmiştir.
Sıkça Sorulan Sorular
- Berlin Yahudi Müzesi ne zaman ve kim tarafından tasarlandı?
- Berlin Yahudi Müzesi, Polonya kökenli Yahudi mimar Daniel Libeskind tarafından 1993 yılında tasarlanmıştır.
- Müzenin yapımı ne zaman tamamlandı ve ne zaman ziyarete açıldı?
- Müzenin yapımı 1999 yılında tamamlanmış ve 2001 yılında ziyarete açılmıştır.
- Berlin Yahudi Müzesi’nin ana amacı nedir?
- Müze, Yahudi soykırımını ve Yahudilerin yaşadığı travmaları hem soykırım öncesi hem de sonrası dönemlerdeki deneyimleri yoluyla aktarmak ve anlamak amacıyla tasarlanmıştır.
- Müzenin mimari olarak öne çıkan özellikleri nelerdir?
- Müze, sıra dışı zigzag formu ve soykırımın sembollerini barındıran enstalasyonlarıyla dikkat çeker. Ayrıca, içinde bulunan üç ana bölümüyle (Süreklilik Yolu, Sürgün Yolu ve Soykırım Yolu) farklı duygusal deneyimleri ziyaretçilere sunar.
- Müze ne zaman ve neden inşa edildi?
- Berlin Yahudi Müzesi, Berlin’de yaşayan Yahudi topluluğunun tarihini ve kültürünü yeniden canlandırmak ve Nazi dönemi zulmünü hatırlatmak amacıyla inşa edilmiştir.
- Berlin Yahudi Müzesi’nin ziyaretçilere sunduğu deneyim nedir?
- Müze, ziyaretçilere tarihi sadece anlatmakla kalmaz, aynı zamanda yaşatır. Mimari tasarımı ve enstalasyonları sayesinde soykırımın acı gerçeğini somut bir şekilde deneyimleme fırsatı sunar.
- Müzenin içeriği hakkında neler bilinmektedir?
- İçerik olarak, müze soykırımın yanı sıra Yahudi kültürü ve tarihini anlatan belgeler, sergiler ve interaktif alanlar içerir.
- Berlin Yahudi Müzesi’nin mimarisi nasıl tasarlanmıştır?
- Müzenin mimarisi, Libeskind’in duygusal deneyimleri yansıtmak için soyut ve sembolik bir yaklaşım kullanmasını içerir. Zigzag formu, koridorları ve enstalasyonlarıyla soykırımın karanlık atmosferini yansıtır.
- Müze ziyaretçileri nasıl rehberlenir?
- Ziyaretçiler, müzenin içinde belirli bir rotayı takip ederek ve her bölümde sunulan bilgileri okuyarak rehberlenirler.
- Berlin Yahudi Müzesi’nin önemi nedir ve kimler tarafından ziyaret edilmelidir?
- Müze, insanlığın karanlık tarihini hatırlatmak ve soykırımın unutulmamasını sağlamak açısından büyük öneme sahiptir. Tarih meraklıları, eğitimciler ve soykırımın etkilerini anlamak isteyen herkes tarafından ziyaret edilmelidir.
Berlin Yahudi Müzesi Hakkında Düşüncelerim
Böyle hassas bir konuda böyle radikal ve tarafsız bir yapı ile yaşanmış olan bu hayatları böylesine derin ve etkileyici bir şekilde aktarmayı başarmış olan bu yapı, şüphesizdir ki çok acılar çekmiş, çok zorluklar görmüş ve anavatanlarından tüyler ürpertici bir şekilde kopartılmış olan Yahudi halkının yaşadıklarını, hissettiklerini ve kimseye anlatamadıkları olayları kendi içerisinde toparlamış ve bunu bir deneyime çevirmiştir. Bütün bu olayları ve yaşananları kapsül şeklinde verip yutulmasını değil, sanki orada o ortamdaymış gibi hissedilmesini ve deneyim edilmesini isteyen yapı, içinde yaratılan soyutsal alanlar sayesinde isteklerine kavuşmuş ve kendisini ziyaretçileri tarafından en çok hatırlanan müzelerden biri yapmıştır.
Berlin Yahudi Müzesi hakkında siz neler düşünüyorsunuz? Sizce yaratılan bu soyutsal mekanlar ve enstalasyon alanları yapının istediklerini aktarması konusunda yeterli oluyor mu? Yapısının algısında veya yaratmak istediği hissiyatta eksik veya hatalı bir yön var mı? Fikirlerinizi bizimle paylaşmayı unutmayın. Eğer hala göz atmadıysanız Bonnefanten Müzesi incelememizi de buraya tıklayarak okuyabilirsiniz.
Mimar: Daniel Libeskind
Mimari Tarz: Dekonstrüktivizm
Yıl: 1993-1999
Yer: Berlin,Almanya
Dök Mimarlık sitesinden daha fazla şey keşfedin
Subscribe to get the latest posts sent to your email.








